








Room information
- Room space
- 12m²
- online since
- 2 days
- Available from
- 08.11.2025
- balcony
- own washing machine
- shared wifi
- mixed gender
- friendships
- unfurnished
- WG experience preferred
Description
Wir haben zwei freie Zimmer in unserer neu zu gründenden 4er WG innnerhalb einer grosszügigen Maisonettewohnung im Kreis 12.
Über uns
Wir sind ein unkompliziertes, abenteuerlustiges Pärchen, das nach drei spannenden Jahren in Amsterdam nun zurück in die Schweiz zieht. Anna (27 J.) hat dort ihre Master in Völkerrecht & Krisen-/Sicherheitsmanagement abgeschlossen, während Cäsar (29 J.) als Bauingenieur an verschiedenen Projekten gearbeitet hat.
Jetzt haben wir ein gemütliches Zuhause in Zürich gefunden und sind auf der Suche nach zwei Mitbewohner:innen, die Lust auf ein echtes WG-Leben haben – also nicht nur Tür-an-Tür wohnen, sondern auch mal gemeinsam kochen, quatschen oder was unternehmen. Wir mögen gemeinsames Essen (darf natürlich auch mal ganz in Ruhe sein), spontane Padel- oder Joggingrunden, Brettspielabende und gute Gespräche – mal politisch, mal deep, mal einfach locker.
Wir sind beide aktiv, viel unterwegs und keine Stubenhocker, freuen uns aber genauso über entspannte Abende daheim mit netter Gesellschaft. Gäste sind bei uns herzlich willkommen – wir mögen’s, wenn ein Zuhause lebt!
Zur Wohnung
Per 8. November suchen wir zwei Mitbewohner:innen für unsere neue Wohnung, die wir selbst ebenfalls Anfang November beziehen werden. Die Fotos stammen noch von der Vormieterschaft – das Wohnzimmer werden wir neu einrichten und die Zimmer sind unmöbeliert.
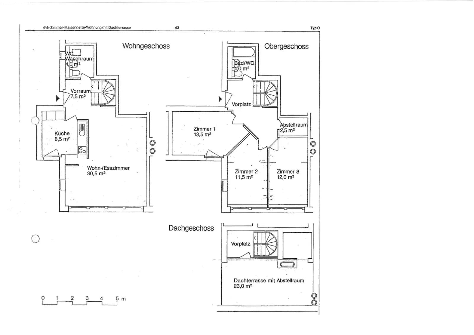
Die 110 m² grosse 4.5-Zimmer-Wohnung liegt im Gebiet Altried im Kreis 12 (Schwamedingen) und erstreckt sich über drei Stockwerke (2.-4. OG):
Unteres Geschoss: Küche, grosses Wohnzimmer und separates WC. Hier gibt’s auch Platz und Anschluss für eine eigene Waschmaschine.
Küche: Geschirrspüler, Keramikherd, Ofen, separater Kühlschrank & Tiefkühler sowie genügend Stauraum – alles da, was man braucht.
Mittleres Geschoss: Drei (Schlaf-)Zimmer und das Badezimmer. Eine Wendeltreppe verbindet alle Etagen.
Oberstes Geschoss: Ein kleiner Vorraum führt auf die rund 23 m² grosse Dachterrasse – perfekt für laue Sommerabende, Frühstück in der Sonne oder einfach gemütliches Beisammensein.
Die Wohnung liegt in einer Siedlung mit angenehmem Mix aus allen Altersklassen. Die Haltestelle Altried (Tramlinie 9, diverse Busse) ist direkt vor der Tür, Mattenhof (Tramlinie 7) ist gut zu Fuss erreichbar. Wer schnell an den Fernverkehr will, nimmt am besten den Zug ab Stettbach. Ein Tiefgaragenplatz kann bei Bedarf dazugemietet werden.
Einkaufsmöglichkeiten: Coop und Aldi sind gleich um die Ecke, das Glattzentrum ist nur einen kurzen Spaziergang entfernt. Und wer gern draussen ist: Die Wohnung liegt ganz in der Nähe der Glatt und des Waldes am Fusse des Zürichbergs – ideal für Spaziergänge, Joggingrunden oder kleine Auszeiten im Grünen.
(Hinweis: Leichte Abweichungen zum Grundriss – z. B. kein Abstellraum im Obergeschoss und leicht andere Raumaufteilung der Schlafzimmer.)
Zur Bewerbung
Schreib uns bei Interesse gerne eine Nachricht mit etwas mehr Informationen über dich! Zum Kennenlernen ist bei Gelegenheit ein Videocall vorgesehen. Da wir selber auch erst ab 1. November einziehen werden, kann eine Besichtigung vor Ort erst ab diesem Zeitpunkt organisiert werden.