




Schützestr. 34, 8280 Kreuzlingen
Room information
1194 CHFpar mois
- En ligne depuis
- 4 semaines
Les caractéristiques suivantes ont été extraites de la description de l'annonce (marqueurs jaunes). Vérifie à l'aide de la description si la chambre/la colocation possède effectivement ces caractéristiques
- Parking
- Balcon
Trouvé sur
tutti
Description
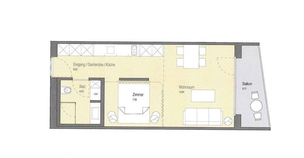
Nur 5 Minuten vom Hauptbahnhof Kreuzlingen, nahe Zentrum und Konstanz! Neubau, Lift, Tiefgarage (CHF 130/Monat), Balkon. Wohn- oder Büronutzung möglich.
Mietangebot:
36 m² CHF 1094 inkl. HK/NK
Optional: Möbel auf Anfrage erhältlich.
Besichtigungen: ab sofort möglich
Bezug: ab 24. November 2025